
Les bâtiments de l’Hôtel Bodard de la Jacopière offrent environ 800m2 de plancher, dont six grands espaces de 60-70m2 environ. Inscrits en totalité à l’inventaire supplémentaires des monuments historiques depuis 2016, les travaux de restauration doivent faire l’objet d’une demande d’autorisation de travaux sous forme de permis de construire auprès de la Conservation Régionale des Monuments Historiques.
L’étude préalable à la restauration de l’hôtel particulier a été remise à la Conservation Régionale des Monuments Historiques (CRMH) en décembre 2024. Cette étude s’appuie sur un diagnostic archéologique des façades et un diagnostic sanitaire détaillé. En échange étroit avec les services de la Conservation Régionale des Monuments Historiques, le programme définitif de restauration est en cours de mise au point. Les travaux sont exécutés sous forme de chantiers école ou ouverts au public depuis 2023.
Le site se développe sur quatre niveaux de plancher et deux niveaux d’accès, l’un depuis la rue Haute-Saint-Maurice, l’autre depuis le Quai Charles VII. Disposées autour d’une cour intérieure, deux ailes de longueur inégale encadrent le corps de logis principal donnant sur la rue Haute-Saint-Maurice.
Un peu d’histoire*

Phase 1 : XIVe siècle*

Phase 2 : XVe siècle*

Phase 3 : XVIe siècle*

Phase 4 : 2e moitié du XVIIe siècle*

Phase 5 : XVIIIe siècle*

Phase 6 : XIXe siècle*

Phase 4 : XX siècle*

Aujourd’hui
* Hypothèses de restitution établies dans l’étude préalable sur la base du rapport de Julien Noblet, archéologue du bâti
Le parti de restauration

L’hôtel particulier ainsi que ses abords sont le témoignage de près de 700 ans d’histoire(s) où chaque propriétaire ou locataire a adapté l’édifice à son ou ses usages. Comme le démontrent les planches de phasage établies par l’archéologue du bâti, l’édifice conserve dans sa structure et ses élévations la superposition de plusieurs états qui révèlent le témoin d’art et d’histoire que représente ce monument.
Par conséquent, nous suggérons dans l’approche globale de la restauration de l’édifice de respecter les apports valables de toutes les époques de stratification du bâti. Par apports valables, nous entendons tous les ouvrages qui présentent un intérêt historique, archéologique et esthétiques.
1. Restauration de l’enveloppe (Clos et Couvert)
- Couvertures : Remplacement systématique des ardoises posées au crochet par une pose d’ardoises au clou. Les faîtages seront en plomb pour le logis et l’aile Ouest, et en terre cuite pour l’aile Est. Les réseaux d’eaux pluviales seront refaits à neuf en cuivre.
- Élévations : Régénération des parements en tuffeau (nettoyage, remplacement des pierres érodées, rejointoiement à la chaux). Le projet prévoit la restitution d’éléments disparus documentés : décors sculptés des frontons de lucarnes , souches de cheminées en pierre de taille et une lucarne sur l’aile Est pour les besoins techniques.
- Menuiseries : Restauration des menuiseries côté rue avec remise en peinture (gris-vert). Côté cour, remplacement à l’identique avec intégration de double vitrage mince des menuiseries existantes. Des menuiseries de style XVIe siècle seront restituées pour les lucarnes.
2. Structures et aménagements intérieurs
- Charpentes et planchers : Suppression des renforts modernes disgracieux au profit de réparations traditionnelles (greffes, entures). La capacité portante des planchers sera vérifiée et renforcée pour s’adapter aux futurs effectifs du public.
- Escaliers : Restauration de l’escalier en vis de la tourelle. Restitution d’un escalier de communication entre le rez-de-cour et le rez-de-rue dans l’aile Ouest. Restitution de l’accès au comble du logis Est depuis l’aile Est.
- Décors : Restauration des cheminées, des sols (tomettes, parquets, dallages) et des papiers peints. Restitution de lambris menuisés dans la grande salle et création de lambris modernes dans l’aile Ouest.
3. Modernisation et accessibilité
- Extension Sud : Construction d’une nouvelle structure (ossature bois/béton) adossée au pignon sud de l’aile Ouest. Elle intégrera un ascenseur et un escalier pour assurer l’accessibilité PMR à tous les niveaux.
- Aménagements de confort : Amélioration de l’isolation thermique (fibre de bois en toiture, béton de chanvre pour les murs) et acoustique. Intégration discrète des réseaux (chauffage par pompe à chaleur, ventilation) dans les combles techniques et faux-plafonds.
4. Traitement des abords
- Ancienne école Charles VII : Deux options sont envisagées : la restauration du bâtiment pour préserver sa valeur mémorielle, ou sa démolition pour ouvrir l’hôtel particulier sur la ville et le quai.
- La cour : Réaménagement pour améliorer l’accessibilité universelle, avec la plantation de mûriers platanes pour l’ombrage et la restauration du portail historique.
- La place de Liesse : L’aménagement de la place est inscrit dans le programme « Action Cœur de Ville », fera l’objet d’une consultation publique indépendante visant à assurer une cohérence architecturale avec l’hôtel particulier ainsi qu’une prolongation de l’espace minéral de la cour.
La restauration des façades et des intérieurs






Le projet d’aménagement des espaces intérieurs
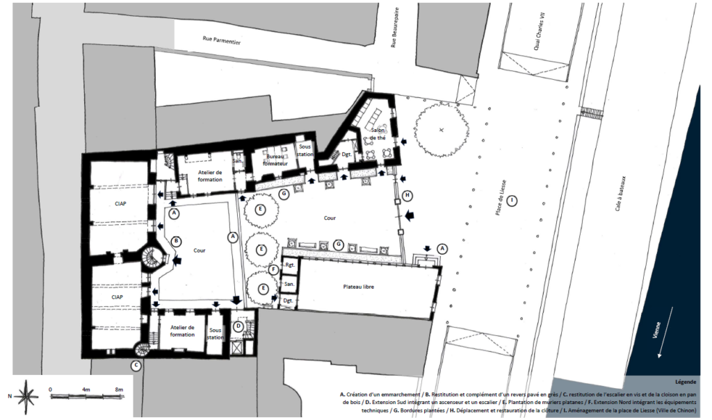
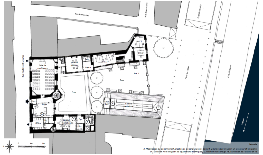
1. Distribution fonctionnelle
L’aménagement est pensé pour transformer ce monument historique en un lieu d’accueil du public tout en respectant la hiérarchie originelle des pièces :
- Espaces d’accueil et services (Rez-de-cour) : Utilisation du niveau bas du Logis pour le parcours muséographique du Centre d’Interprétation de l’Architecture et du Patrimoine (CIAP), utilisation du niveau bas des ailes pour des espaces de formation dédiés à la restauration du patrimoine, utilisation de l’ancienne école comme un plateau libre pouvant accueillir un restaurant ou un atelier d’artiste
- Espaces de médiation et d’exposition (Rez-de-rue et 1er étage) : Les pièces les plus prestigieuses du logis et de l’aile Ouest sont dédiées à l’accueil du public et notamment aux séminaires, conférences, expositions et cocktails. Dans l’aile Est une agence d’architecture spécialisée dans la restauration du patrimoine est installée
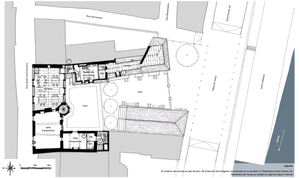
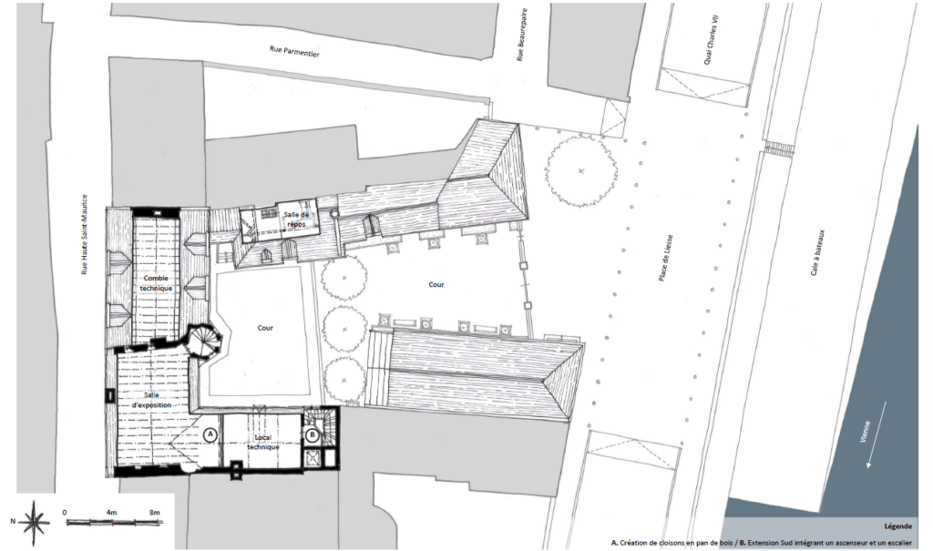
- Espaces de travail et administration (2ème étage / Combles) : Les niveaux supérieurs sont réservés aux bureaux, expositions et locaux techniques.
2. Accessibilité et liaisons verticales
L’enjeu majeur est de rendre l’intégralité du bâtiment accessible à tous sans dénaturer les structures anciennes :
- Création d’une extension Sud : Ajout d’un volume contemporain adossé au pignon pour accueillir un ascenseur et un escalier de secours, préservant ainsi les épidermes historiques
- Maintien des circulations d’époque : Restauration des escaliers en vis et restitution de liaisons verticales entre les ailes et les logis
3. Conservation et mise en valeur
L’aménagement intérieur refuse la standardisation pour privilégier le caractère historique :
- Préservation des décors : Conservation des sols anciens (tomettes, pierre, parquets), des cheminées et des boiseries existantes.
- Réversibilité des interventions : Les nouveaux aménagements (cloisons, mobilier muséographique, éclairage) sont conçus pour être distinguables des structures anciennes et potentiellement démontables.
- Conservation de l’authenticité : Utilisation de matériaux compatibles avec le bâti ancien pour les nouveaux éléments de mobilier ou de cloisonnement.
4. Modernisation et confort
L’objectif est d’améliorer le confort de l’édifice avec une empreinte visuelle minimale :
- Amélioration de la performance thermique : Isolation des parois par l’intérieur pour réduire les besoins énergétiques tout en laissant respirer les murs en pierre en recourant notamment aux enduits correcteurs en béton de chanvre ou au lambrissage.
- Intégration discrète des réseaux : Dissimulation des équipements de chauffage, de ventilation et d’électricité dans les volumes perdus pour ne pas altérer la lecture architecturale des pièces.
- Mise en sécurité incendie : Adaptation des espaces aux normes de sécurité actuelles de manière intégrée au décor.





